House Extension and complete refurbishment in Saffron Walden

This project extends and refurbishes a 1970’s detached house abutting Saffron Walden’s Conservation Area, enhancing its functionality and aesthetics. Refurbishing and extending this dwelling enhances its modern functionality and aesthetic presence through strategic architectural interventions.

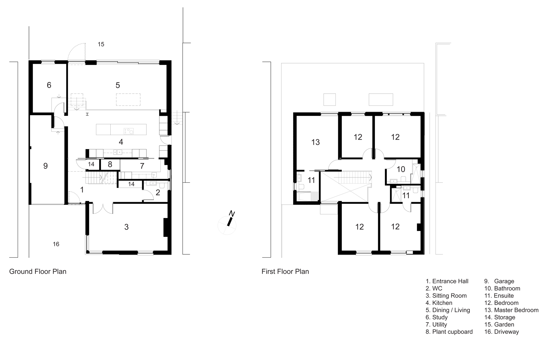
Externally, the house was completely renewed with single-storey rear and first-floor side extensions. The entire building was reclad in new brick and contemporary materials for a modern appearance.

Significantly, internally, we reimagined the layout to create a dynamic and cohesive flow. We moved the staircase to a double-height hallway, introducing light and spatial drama to the home’s heart. A split-level, open-plan rear connects the kitchen and new extension to the garden, providing a seamless indoor–outdoor link.

Fundamentally, the project achieves a sensitive yet forward-looking transformation — preserving the building’s suburban character while introducing a contemporary architectural language suited to modern living. You can see other samples of Extensions in Saffron Walden here.

Year: 2025
Location: Saffron Walden, Essex
Stage: Completed